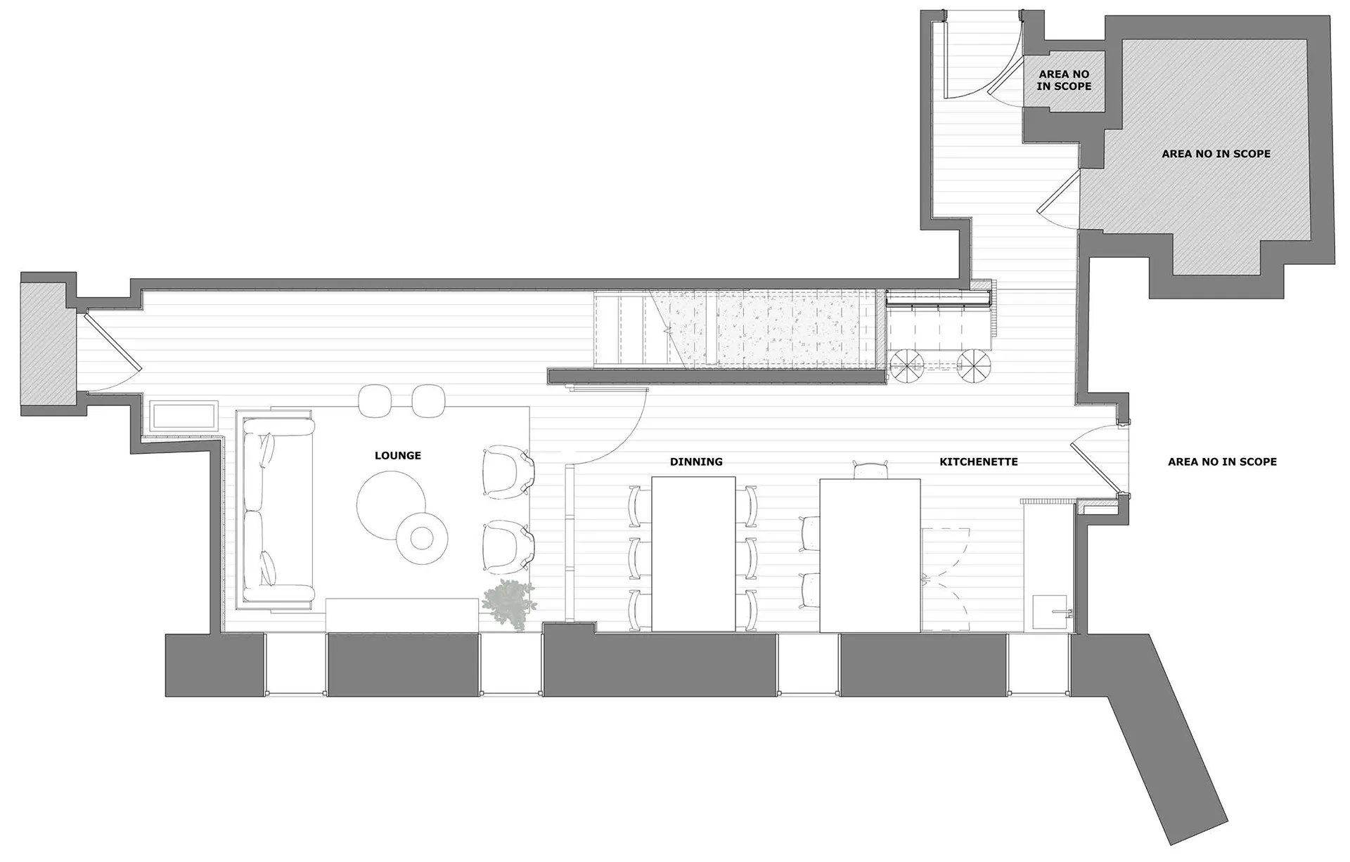
Columbia University Residential Operations - Employee Lounge

Columbia University’s residential operations team was working out of a basement space that did nothing for morale or retention. They needed to transform an uninspiring environment into a place employees actually wanted to spend their breaks—without a major capital investment. 

The challenge: make a basement feel welcoming and energizing on a tight institutional budget. 

Our approach focused on what costs nothing but makes all the difference—thoughtful space planning, strategic lighting, and smart material choices. Rather than expensive finishes, we used simple materials in intentional ways to create warmth and visual interest. The result transformed staff perception of their workplace. 

The outcome: Columbia gained an employee amenity that supports retention and workplace satisfaction without the price tag of a full renovation. Proof that good design doesn’t always require a big budget—just the right strategy. 

Project Scope: 

  • Client: Columbia University Residential Operations 
  • Type: Employee break room/lounge renovation 
  • Challenge: Transform basement space on limited budget 
  • Approach: Strategic design with accessible materials 
  • Result: High-impact transformation, modest investment 

Project Details:

  • Location: New York, NY, United States
  • Area: 436 SF
  • Year: 2025 
Category: Hospitality
Drag View